гр. Бургас, ул. „Гурко“ 7А, ет.3, офис 6
Красимира Узунова
+359 88 822 0110
office@eurohitproperty.com
Йордан Узунов
+359 88 536 4005
office@eurohitproperty.com
Общ преглед
- 2-стаен
- 1
- 2027
- 144
Описание
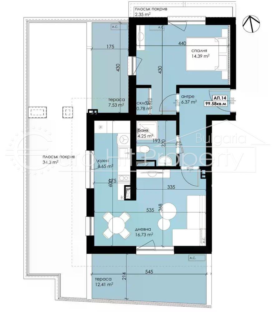
Жилищна сграда в строеж в гр.Созопол – м.Мисаря в непосредствена близост до вече изградени сгради Мястото се намира на от 800 м от плаж Хармани. Местността Мисаря се оформя като нов разрастващ се квартал на Созопол, където се строи нова поликлиника, голям супермаркет. Сградата се състои от един полуподземен етаж с парко места, четири жилищни етажа с асансьор, има външни паркоместа и два самостоятелни гаража. Има общо 16 апартамента, от които 10 двустайни и 6 едностайни, 9 паркоместа в подземен гараж, 7 външни паркоместа. Сградата ще бъде регистрирана по закона за етажната собственост. СТЕПЕН НА ЗАВЪРШЕНОСТ:
Фасада: EPS топлоизолационен пакет 10см, силиконова мазилка Baumit.
Дограма: PVC 5 камерна.
Тераси: гранитогрес за външни условия. Покривни тераси с XPS и хидроизолация. Алуминиев ажурен парапет.
Покриви: плоски.
Общи части: стълбище от гранитогрес, алуминиев парапет.
Апартаменти:
Входни блиндирани врати.
ЕЛ: контакти , без осветителни тела
ВиК: до тапа.
Стени: Вътрешна мазилка.
Под: циментова замазка
Тавани: шпакловка
Начин на плащане:
5000 евро СТОП капаро
Първа вноска – 30% при подписване на предварителен договор
Втора вноска – 30% при Акт 14
Трета вноска – 30% при Акт 15
Четвърта вноска – 10% при Акт 16
Начало на строителството: октомври 2024г. Краен срок: февруари 2027г.
Детайли
-
Квадратура 136 m²
-
Година на строеж 2027
-
Етаж 4
-
Етажи 4
-
Вид строителство Тухла
-
Цена кв.м. 1059
-
Ново строителство Да
-
Балкони (бр.) 2
-
Баня с тоалетна (бр.) 1
Лихвен калкулатор
-
Първоначално плащане
-
Размер на заема
-
Месечно плащане
Подобни имоти
Двустаен апартамент в строеж в гр. Созопол – Мисарята
- €91,500
- 65 m²
- Легло: 1
- ID: 143
Двустаен апартамент в новострояща се жилищна сглада в гр. Созопол
- €89,400
- 69 m²
- Легло: 1
- ID: 142
Контакти
Красимира Узунова
+359 88 822 0110
office@eurohitproperty.com
Йордан Узунов
+359 88 536 4005
office@eurohitproperty.com
Свържете се с мен

