гр. Бургас, ул. „Гурко“ 7А, ет.3, офис 6
Красимира Узунова
+359 88 822 0110
office@eurohitproperty.com
Йордан Узунов
+359 88 536 4005
office@eurohitproperty.com
Общ преглед
- 2-стаен
- 2026
- 149
Описание
Двустаен апартамент ново строителство в Бургас, кв. Хоризонт – отличен избор за дом или инвестиция!
– 📍 Локация: гр. Бургас, кв. Хоризонт
– 🏢 Вид имот: 2-стаен апартамент (ново строителство)
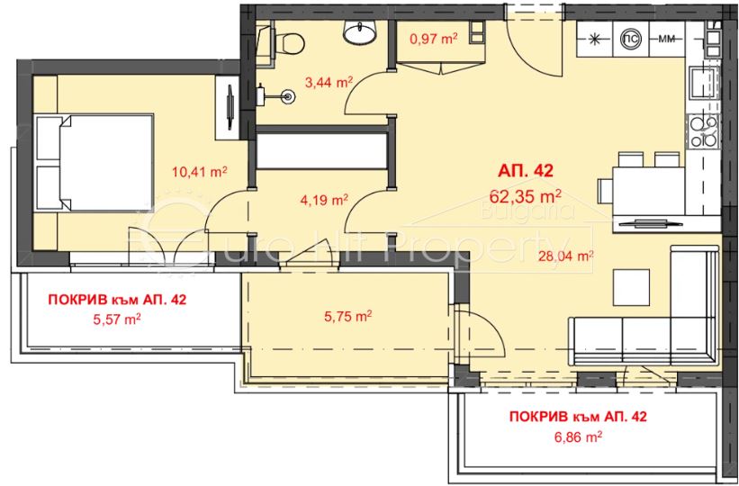
– 📐 Обща площ: 72.00 кв.м
– 💶 Цена: 102 000 €
– 🗓️ Година на построяване: 2027 г.
– 🛏️ Брой стаи: 2
– 🚿 Бани с тоалетна: 1
– 🌅 Балкони: 1
– 🛗 Асансьор: Да
– 🏡 Функционално разпределение: светла дневна с място за кухненски бокс и трапезария, уютна спалня, баня с тоалетна и тераса за релакс. Просторното усещане и правилните форми на стаите позволяват лесно обзавеждане.
– 🧱 Сграда от съвременен клас: качествени общи части, контролиран достъп, асансьор и модерна визия. Новото строителство гарантира отлична топло- и шумоизолация и по-ниски разходи за поддръжка.
– 🔑 Подходящ за лично ползване и за отдаване под наем – район с активен интерес и добър наемателски потенциал.
– 🌞 Простор и комфорт, балкон за сутрешно кафе, а големината от 72 кв.м позволява практично зониране и създаване на уютна атмосфера.
За квартала:
– 🌳 Кв. Хоризонт е спокоен и подреден, с бърз достъп до ключови булеварди, магазини и услуги, както и удобен градски транспорт.
– 🏖️ Близост до зони за отдих и морския бриз на Бургас прави района желан за живеене през всички сезони.
Свържете се за повече информация и оглед – този имот е истинска находка в динамично развиващ се район! 📞🏠
Детайли
-
Квадратура 72 m²
-
Година на строеж 2026
-
Етаж 5
-
Етажи 9
-
Обзавеждане Необзаведен
-
Вид строителство Тухла
-
Цена кв.м. 1417
-
Ново строителство Да
-
Балкони (бр.) 1
-
Баня с тоалетна (бр.) 1
Лихвен калкулатор
-
Първоначално плащане
-
Размер на заема
-
Месечно плащане
Подобни имоти
Двустаен напълно обзаведен апартамент под наем до училище Братя Миладинови
- €700
- 62 m²
- Легло: 1
- ID: 189
Отдава се под наем чисто нов двустаен апартамент в нова сграда в топ центъра на кв. Сарафово
- €550
- 60 m²
- Легло: 1
- ID: 187
Лешникова градина в землището на с. Пирне с лице на асфалтов път
- €49,900
- 18000 m²
- ID: 186
Контакти
Красимира Узунова
+359 88 822 0110
office@eurohitproperty.com
Йордан Узунов
+359 88 536 4005
office@eurohitproperty.com
Свържете се с мен



